Inhaber/Geschäftsführer
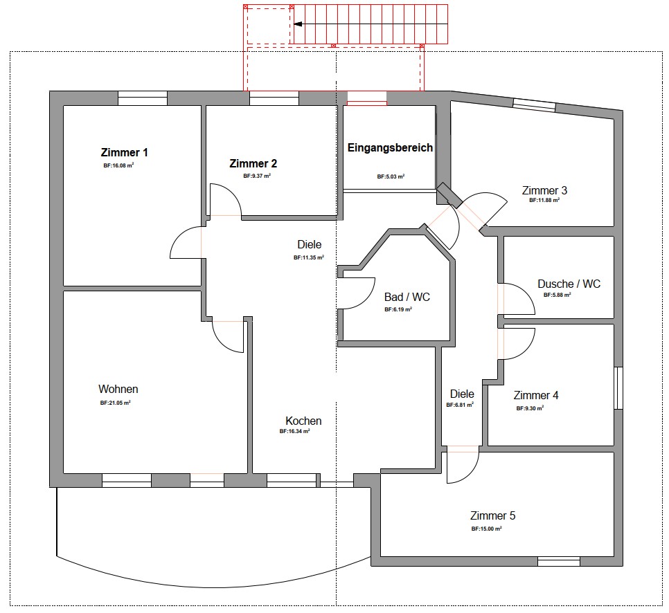
6.5 Zimmerwohnung mit toller Aussicht in Eschen
Kapfstrasse 23, 9492 Eschen
Beschreibung
- 2 Parteienhaus
- Helle Räume
- Moderne Küche
- 5 Schlafzimmer
- 2 Badezimmer
- Zugang zur Wohnung nur über Aussentreppe
- Kein Lift
- Grosser Dachboden
- Garten und Sitzplatz zur Mitbenutzung
- Ruhige Lage (Sackgasse)
- Weitere Aussenparkplätze verfügbar
Durch das Laden dieser Karte stimmen Sie der Datenverarbeitung gemäss der Datenschutzrichtlinie von OpenStreetMap Foundation zu




















