Inhaber/Geschäftsführer
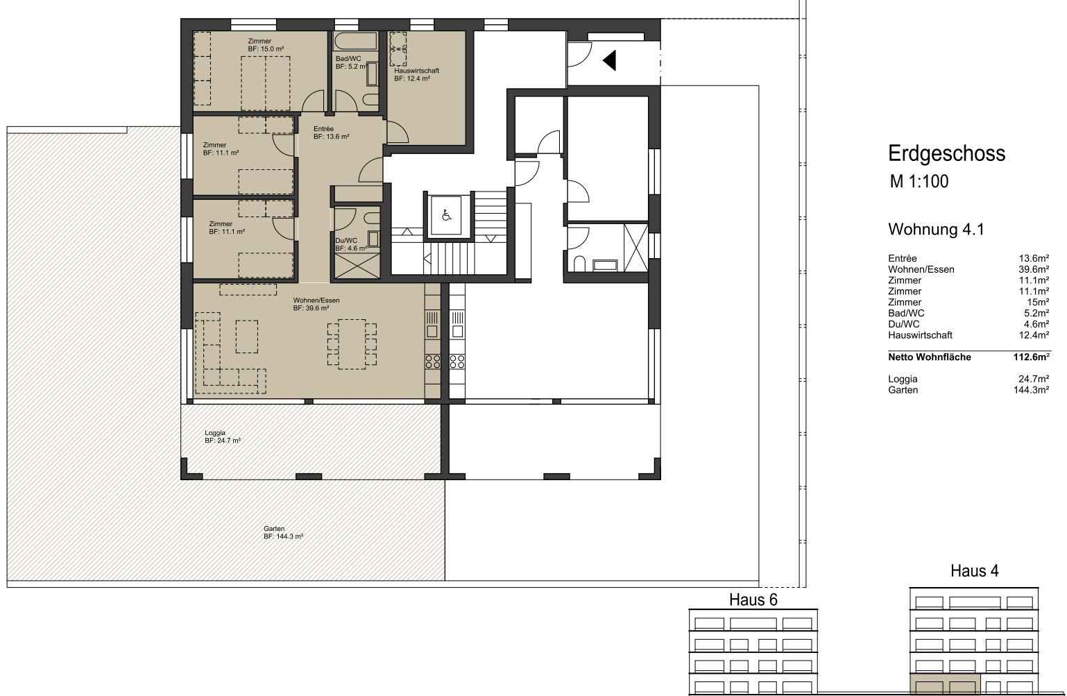
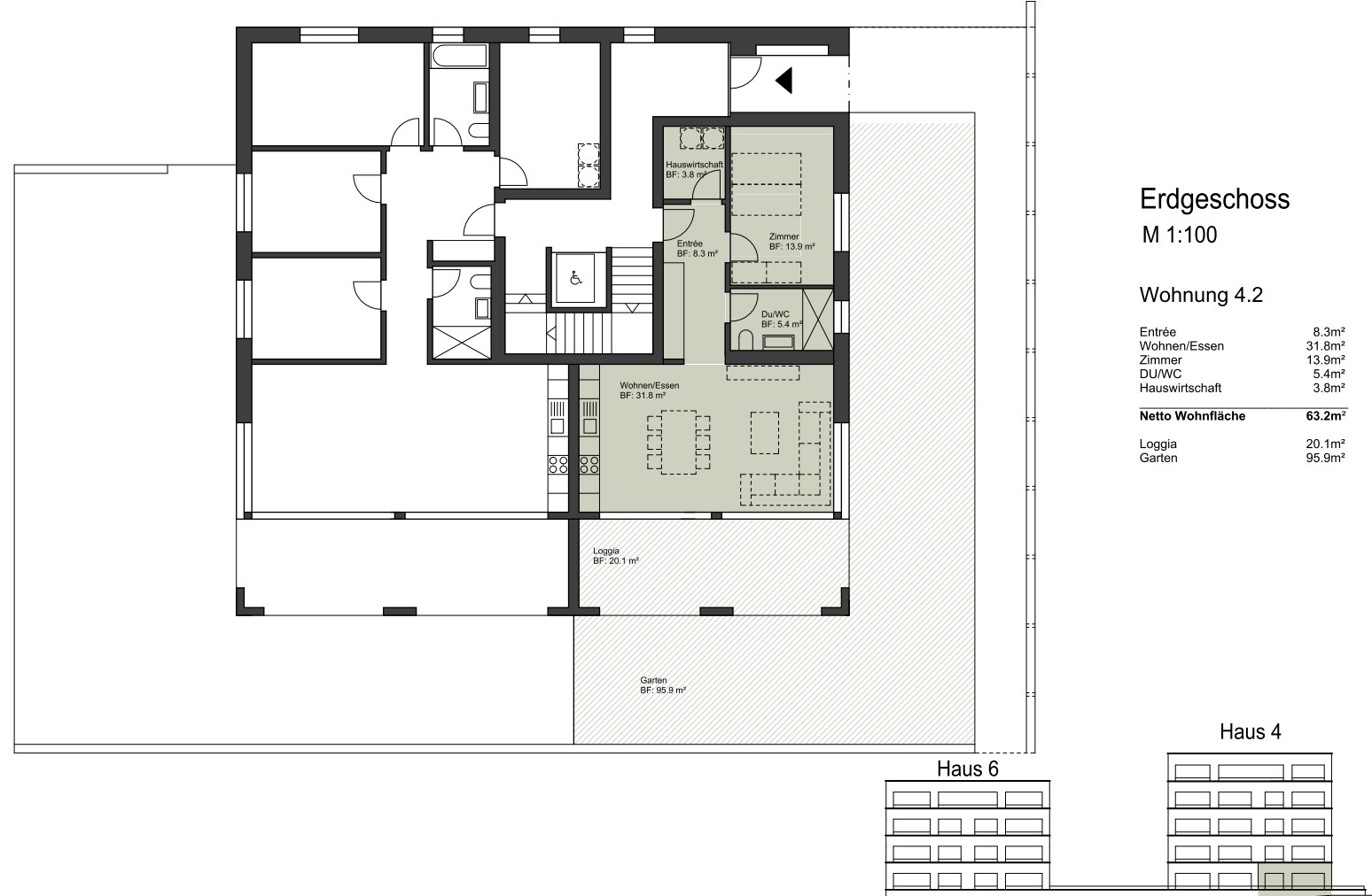
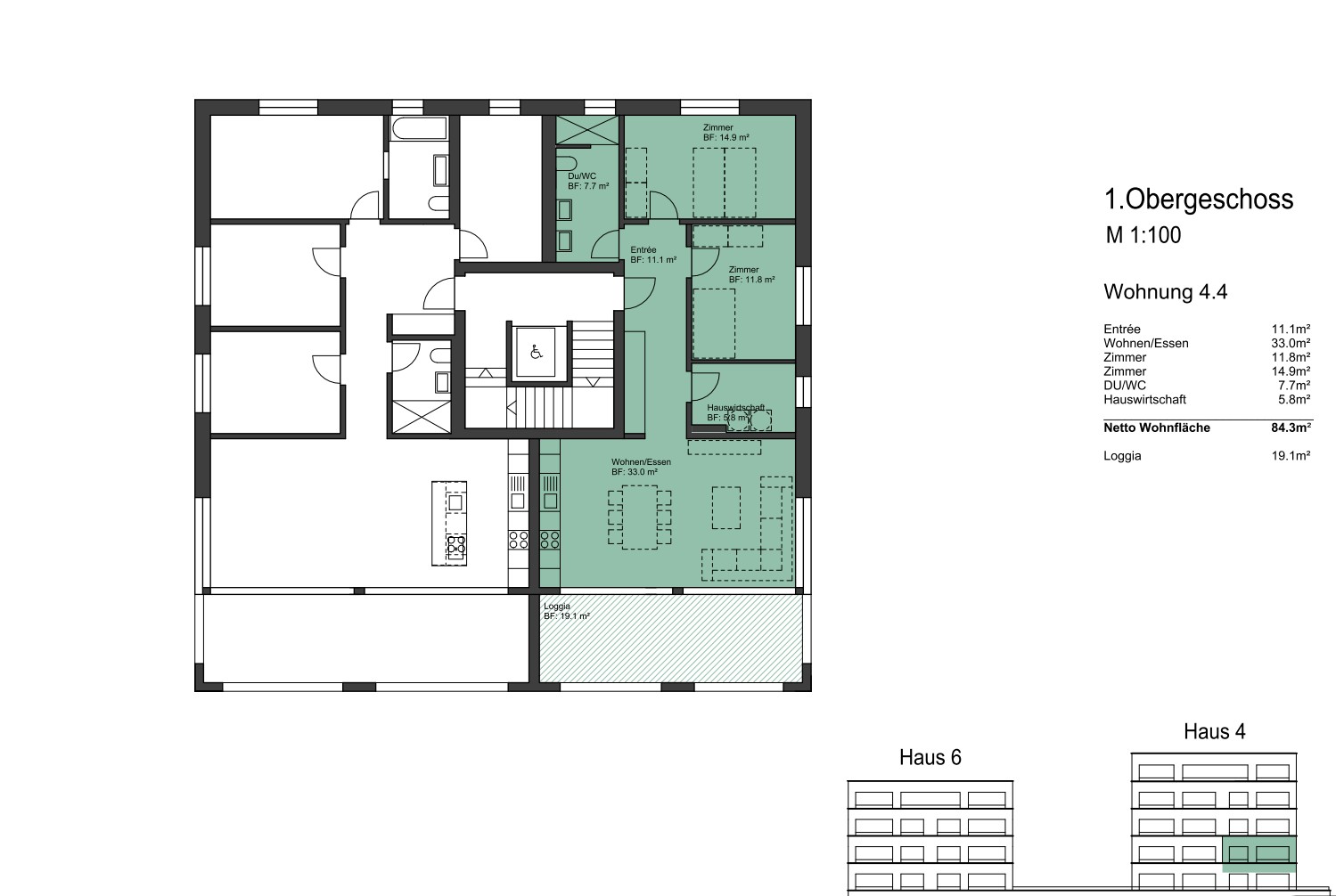
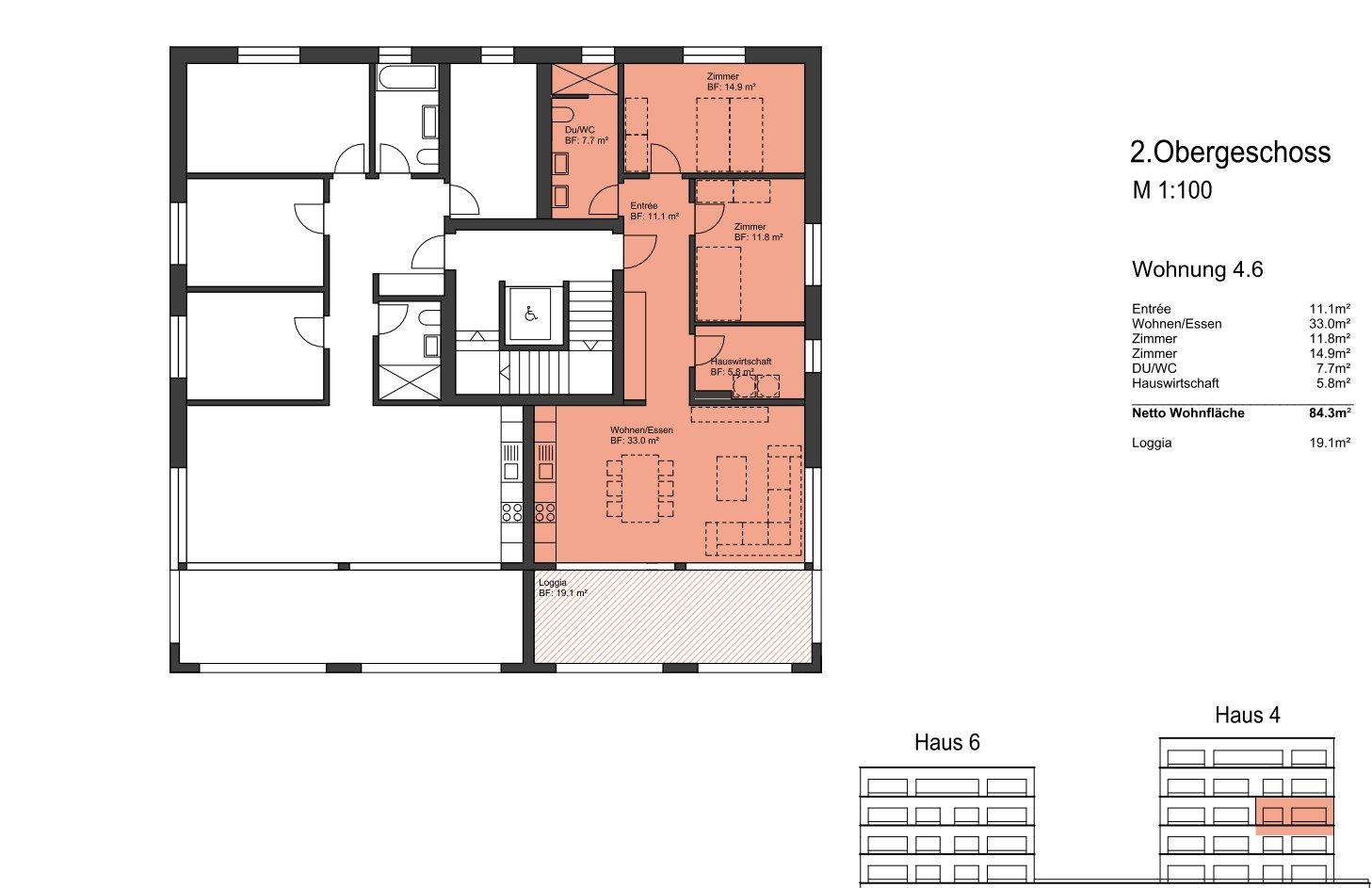
**NEUBAU** MFH Hasenweg Nr. 4 mit neun Eigentumswohnungen in Vaduz
Hasenweg 4, 9490 Vaduz
Beschreibung
- Moderne 2.5- bis 5.5-Zimmer-Wohnungen mit durchdachten Grundrissen
- Helle Räume dank grosszügigen Fensterfronten
- Hochwertiger Ausbaustandard mit modernen Materialien
- Grosszügige Balkone und Terrassen für hohen Wohnkomfort
- Erdgeschosswohnungen zT. mit privaten Gartenflächen
- Holzmetall-Fenster, innen Fichtenholz geölt, aussen einbrennlackiert
- 3-fach Isolierverglasung
- Heizungsanlage Fernwärme
- Flachdach extensiv begrünt u. mit einer max. Auslegung an PV-Modulen
- Fassade mit Klinkerriemchen
- Zusätzliche Keller- und Disporäume verfügbar
- Weitere Tiefgaragenplätze verfügbar
- Ruhige Lage (Sackgasse)
- Fertigstellung voraussichtlich Juli 2027
- Bemerkung: Grundriss BF= Bodenfläche/Nettofläche
Ideale Lage mit vielfältiger Infrastruktur:
- Mühleholzmarkt in unmittelbarer Nähe
- Bushaltestelle bequem erreichbar
- Freizeitangebote: Freibad, Tennishalle und bald die neue Kletterhalle
- Rheindamm zum Spazieren, Joggen und Radfahren direkt vor der Haustüre
Kaufpreis:
ab 710'000.00 CHFDurch das Laden dieser Karte stimmen Sie der Datenverarbeitung gemäss der Datenschutzrichtlinie von OpenStreetMap Foundation zu


















