Inhaber/Geschäftsführer
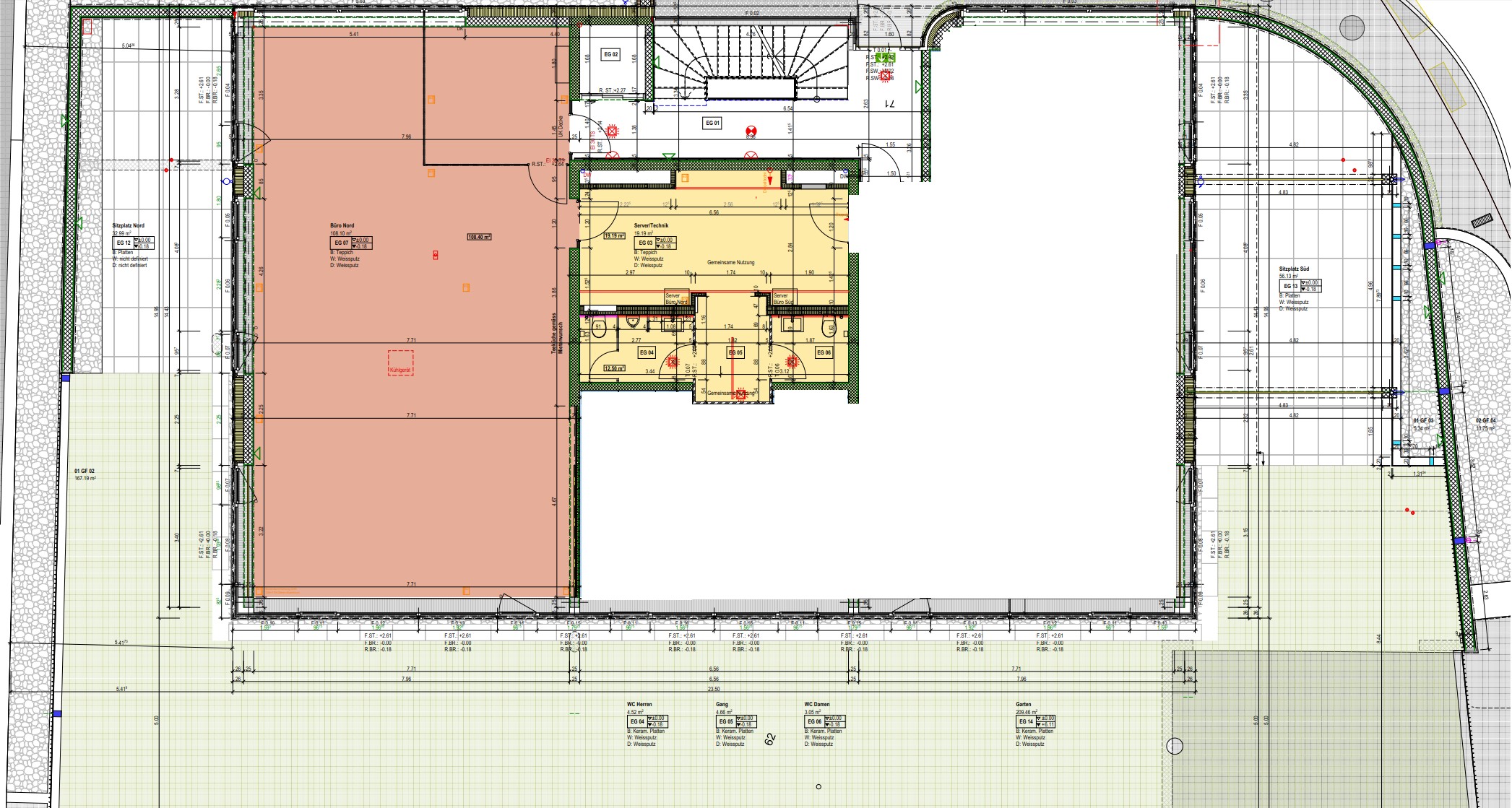
Moderne Büroräumlichkeiten (EG) an verkehrsgünstiger Lage in Vaduz
Landstrasse 71, 9490 Vaduz
Miete:
3'090.00 (netto) CHFDurch das Laden dieser Karte stimmen Sie der Datenverarbeitung gemäss der Datenschutzrichtlinie von OpenStreetMap Foundation zu















